Строить легче с проектом от "АЛЬФАПЛАН" потому, что у нас подробные строительные чертежи. Смотрите ВИДЕО, читайте на странице Состав проекта дома.
Готовые проекты: 1. не предназначены для строительства в СЕЙСМИЧЕСКИ АКТИВНЫХ РАЙОНАХ, а фундаменты - в условиях ВЕЧНОЙ МЕРЗЛОТЫ, 2. проекты домов требуют Привязки к конкретному участку строительства (внизу страницы).
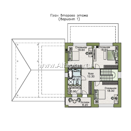
.
| Общая площадь дома | 214.8 м² |
|---|---|
| Площадь гаража | 30.5 м² |
| Общая площадь дома, без гаража | 184.3 м² |
| Тип фундамента | монолитная ж/б плита | |
|---|---|---|
| Тип наружных стен | газо(пено)бетон/кирпич | |
| Тип внутренних несущих стен | газо(пено)бетон/кирпич | |
| Тип перекрытий | монолитная ж/б плита | |
| Тип кровли | битумная черепица, возможна металлочерепица | |
| Наружная отделка стен | лицевой кирпич, облицовочный камень, деревянная/искусственная вагонка | |
| Наружная отделка цоколя | облицовочный камень | |
| Гараж | Гараж на 1 авто/С гаражом-навесом/Гаражные ворота ALUTECH (реклама: ООО "Алютех-М") | |
| Габаритные размеры дома | 10.2 м x 19 м | |
| Высота дома | от уровня пола 1-го этажа | 9.4 м |
| Высота 1-го этажа | от пола до потолка | 3 м |
| Высота 2-го этажа | от пола до потолка | 2.7 м |
| Ширина | 10.2 м | |
| Длина | 19 м | |
| Утеплитель | минеральная вата | |
| Материал окон | из ПВХ профилей/Защитные роллеты ALUTECH (реклама: ООО "Алютех-М") |
Внесение изменений в проекты
ПодробнееИзменение фундамента, перекрытий, теплые полы
ПодробнееРазбивочный план, благоустройство, озеленение
ПодробнееРазработка проекта по заданию Закачика
ПодробнееКорректировка фасада по желаниям заказчика
Подробнее
Комментарии 0