G139.1 Проект загородного дома из газобетона, планировка с кабинетом на 1 эт и с гаражом, в современном стиле

Автор проекта: Aрхитекторы - партнеры
  • Общая площадь дома:193.5 м²
Стоимость проекта:
  • Архитектурно-строительные чертежи (АС)    38 900 ₽
  • Внутренние инженерные системы (ИС) отопление, водопровод, канализация, электрооборудование    15 000 ₽
  • Строительный паспорт проекта    5 000 ₽
  • Разбивочный план вашего участка    6 000 ₽
  • Дополнительная копия проекта    3 000 ₽
  • При покупке проекта дома можно выбрать три бесплатных опции (проекта), посмотреть проекты)    1 ₽
  • Доставка по России бесплатно, в страны СНГ    По дог.
Стоимость, дополнительные опции только для проектов Тарасова В.А.:
  • Электронная копия в формате PDF     5 000 ₽
  • Корректировка Паспорта проекта
    (в зависимости от пожеланий)   
    По дог.
  • Корректировка конструкций дома
    (в зависимости от пожеланий)   
    По дог.
  • Разработать установку скрытых алюминиевых роллет (опция, отдельный альбом)    1 ₽
Заказать проектПоложить в мои желания
Спасибо за обращение к нам, в ближайшее время мы вам ответим

Строить легче с проектом от  "АЛЬФАПЛАН" потому, что у нас подробные строительные чертежи.  Смотрите ВИДЕО, читайте на странице  Состав проекта дома.

Готовые проекты: 1. не предназначены для строительства в СЕЙСМИЧЕСКИ АКТИВНЫХ РАЙОНАХ, а фундаменты - в условиях ВЕЧНОЙ МЕРЗЛОТЫ, 2. проекты домов требуют Привязки к конкретному участку строительства (внизу страницы).

.

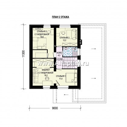
Общая площадь дома 193.5 м²
Площадь гаража 24.6 м²
Общая площадь дома, без гаража 168.9 м²

Проект загородного дома из газобетона, планировка с кабинетом на 1 эт и с гаражом, в современном стиле - технические характеристики

Тип фундамента монолитная ж/б плита
Тип наружных стен газо(пено)бетонные блоки
Тип внутренних несущих стен газо(пено)бетонные блоки
Тип перекрытий по деревянным балкам
Тип кровли металлочерепица
Наружная отделка стен лицевой кирпич
Наружная отделка цоколя облицовочный камень
Гараж Гараж на 1 авто/Гаражные ворота ALUTECH (реклама: ООО "Алютех-М")
Утеплитель минеральная вата
Материал окон из ПВХ профилей/Защитные роллеты ALUTECH (реклама: ООО "Алютех-М")

Описание проекта

Проект загородного дома из газобетона, планировка с кабинетом на 1 эт и с гаражом, в современном стиле

Сервис для заказчиков

  • Сервис
    для заказчиков

    Внесение изменений в проекты

    Подробнее
  • Корректировка
    конструкций

    Изменение фундамента, перекрытий, теплые полы

    Подробнее
  • Планировка
    участка

    Разбивочный план, благоустройство, озеленение

    Подробнее
  • Индивидуальное
    проектирование

    Разработка проекта по заданию Закачика

    Подробнее
  • Индивидуальный
    фасад

    Корректировка фасада по желаниям заказчика

    Подробнее

Комментарии 0

Об этом проекте ещё никто не писал.
Задай вопрос или поделись своим мнением!
Нам не всё равно

Добавить комментарий
Добавление комментария

Коллекции с этим проектом