633E «Сафо» - проект двухэтажного дома, из кирпича, второй свет гостиной, с сауной и с террасой, американский стиль

Автор проекта: В. Тарасов
  • Общая площадь дома:243.3 м²
  • Площадь отапливаемых помещений:229.8 м²
Стоимость проекта:
  • Архитектурно-строительные чертежи (АС)    56 900 ₽
  • Внутренние инженерные системы (ИС) отопление, водопровод, канализация, электрооборудование    12 300 ₽
  • Строительный паспорт проекта    3 500 ₽
  • Разбивочный план вашего участка    6 000 ₽
  • Дополнительная копия проекта    4 000 ₽
  • При покупке проекта дома можно выбрать три бесплатных опции (проекта), посмотреть проекты)    1 ₽
  • Доставка по России бесплатно, в страны СНГ    По дог.
Стоимость, дополнительные опции только для проектов Тарасова В.А.:
  • Электронная копия в формате PDF     5 000 ₽
  • Корректировка Паспорта проекта
    (в зависимости от пожеланий)   
    По дог.
  • Корректировка конструкций дома
    (в зависимости от пожеланий)   
    По дог.
  • Разработать установку скрытых алюминиевых роллет (опция, отдельный альбом)    1 ₽
Заказать проектПоложить в мои желания
Спасибо за обращение к нам, в ближайшее время мы вам ответим

Строить легче с проектом от  "АЛЬФАПЛАН" потому, что у нас подробные строительные чертежи.  Смотрите ВИДЕО, читайте на странице  Состав проекта дома.

Готовые проекты: 1. не предназначены для строительства в СЕЙСМИЧЕСКИ АКТИВНЫХ РАЙОНАХ, а фундаменты - в условиях ВЕЧНОЙ МЕРЗЛОТЫ, 2. проекты домов требуют Привязки к конкретному участку строительства (внизу страницы).

.

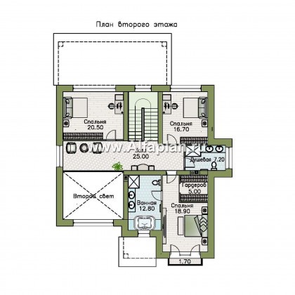
Общая площадь дома 243.3 м²

«Сафо» - проект двухэтажного дома, из кирпича, второй свет гостиной, с сауной и с террасой, американский стиль - технические характеристики

Тип фундамента монолитная ж/б плита
Тип наружных стен кирпич/газо(пено)бетонные блоки
Тип внутренних несущих стен кирпич
Тип перекрытий монолитная ж/б плита над 1-ым эт, по деревянным балкам над 2-ым
Тип кровли натуральная черепица/битумная черепица
Наружная отделка стен лицевой кирпич, декоративная штукатурка
Наружная отделка цоколя облицовочный камень
Гараж Без гаража
Ширина 14 м
Длина 17 м
Утеплитель минеральная вата
Материал окон из ПВХ профилей/Защитные роллеты ALUTECH (реклама: ООО "Алютех-М")

Описание проекта

«Сафо» - проект двухэтажного дома, из кирпича, второй свет гостиной, с сауной и с террасой, американский стиль

Сервис для заказчиков

  • Сервис
    для заказчиков

    Внесение изменений в проекты

    Подробнее
  • Корректировка
    конструкций

    Изменение фундамента, перекрытий, теплые полы

    Подробнее
  • Планировка
    участка

    Разбивочный план, благоустройство, озеленение

    Подробнее
  • Индивидуальное
    проектирование

    Разработка проекта по заданию Закачика

    Подробнее
  • Индивидуальный
    фасад

    Корректировка фасада по желаниям заказчика

    Подробнее

Комментарии 0

Об этом проекте ещё никто не писал.
Задай вопрос или поделись своим мнением!
Нам не всё равно

Добавить комментарий
Добавление комментария

Коллекции с этим проектом